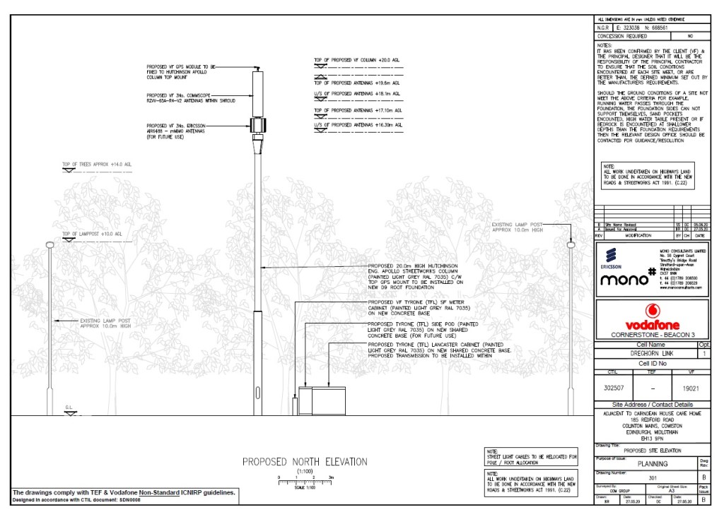
Vodafone have been in touch to say they plan to install a 5G mast at 185 Redford Road. The alternative locations are listed below – all were found to be less suitable by Vodafone. Please get in touch if you would like more details – Scott.Arthur@Edinburgh.Gov.UK.
| Option: | Site Type: | Site Address: | Reason for not choosing site: |
| A | Existing Streetworks | TEF Site Ref 9327, Redford Road SW, Edinburgh, EH13 9PW | Although currently a shared structure providing 2G, 3G and 4G coverage for both operators, there is no comparable streetworks style solution that can accommodate 5G antennas for both Vodafone and Telefonica. It would require significant redevelopment and a completely new mast of substantial width and height, as well as taking up the majority of land at its base. Therefore it is considered that redevelopment would be inappropriate within the streetscene, compromise pedestrian movements and impact on highway safety. |
| B | Streetworks | Redford Road SW, Edinburgh, EH13 9PW | To avoid network interference there needs to be vertical and horizontal separation between masts. In this instance 16 metres of horizontal separation is required between the existing streetworks style mast that will continue to be operated by Telefonica and the proposed Vodafone mast. Therefore co-location within this 16 metre radius is not technically viable and so is discounted. |
| C | Streetworks | Oxgangs Farm Grove, Oxgangs Farm Drive, Oxgangs Farm Avenue, Redford Road, Dreghorn Drive, Dreghorn Gardens, Dreghorn Place, Dreghorn Park, The Gallolee, Edinburgh, EH13 | There are houses fronting both sides of this road, the pavements are narrow and there are regular driveways and pathways for some of the properties. Given the purely residential setting, we consider there are no opportunities to site a street works style proposal on this road as any proposal would compromise pedestrian movements, access arrangements to properties and would also likely impact on highway safety. In addition, the scale of this proposed installation would be out of keeping with the scale of this street. |
| D | Existing Telecoms Site | EE and 3 Site Ref 57566: Travel Lodge, 47 Dreghorn Link, Edinburgh, EH13 9QR | This location is too far removed from the search area to provide the required level of coverage and capacity in which it would impact upon the neighbouring base station sites in the wider network. Therefore, this site has to be discounted as it does not meet the operator’s technical requirements. |
| E | Rooftop | Cairndean House, 185 Redford Road, Edinburgh, EH13 9PN | This building was considered, however was determined to be too low to host a sensitively designed base station. When taking into account the roof shape, overall building height, as well as its surrounding context, a rooftop proposal of significant height would be required to meet the operator’s technical requirements. It is considered that such a proposal would be out of keeping with the host building. |
| F | Streetworks | Street Works on South Pavement of Redford Road SW, Edinburgh, EH13 9PN | There is insufficient space available on this stretch of pavement as the siting and dimensions of a street works style base station would restrict pedestrian movements to unacceptably low levels. |
| G | Streetworks | Dreghorn Link SW, Edinburgh, EH13 9PN | Given the height and maturity of the trees found next to this site, this natural clutter would prevent the effective propagation of radio signals towards the target area and so this location had to be discounted. |
| H | Greenfield | Dreghorn Barracks, Redford Road, Edinburgh, EH13 9QW | Given the height and maturity of the trees found next to this site, this natural clutter would prevent the effective propagation of radio signals towards the target area and so this location had to be discounted. |
